Einzelhandel, Kauf, Duisburg
Immobilienbörse
 Kaiser-Friedrich-Str. 250, Röttgersbach, 47167 Duisburg

Kaiser-Friedrich-Str. 250, Röttgersbach, 47167 Duisburg

Objektbeschreibung

Die Immobilie befindet sich in einem gepflegten Zustand und wurde 1964 errichtet. Der Laden wurde zuletzt als Imbiss genutzt und könnte so wieder belegt werden.
Das Ladenlokal teilt sich auf insgesamt 77 m² auf und verfügt neben einer seperaten Küche, Flächen zur Lagerung.
Die Einheit lässt sich sowohl von Vorne, als auch von Hinten durch einen separaten Eingang betreten und verfügt gem. der Teilungserklärung über zwei Stellplätze im Hof.
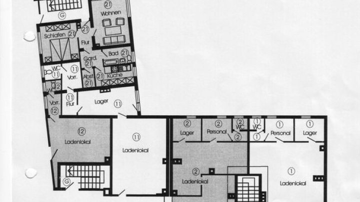
Bei der angebotenen Gewerbeeinheit handelt es sich um die TE11 - diese ist entsprechend mit der Ziffer 11 im Grundriss bezeichnet.

Baujahr 1964
Heizungsart Öl-Heizung
Energieausweis liegt vor
Energie­ausweistyp Verbrauchsausweis
Energie­ver­brauchs­kennwert 105,1 kWh/(m²*a)

Lage

Röttgersbach liegt im südlichen Teil von Duisburg und gehört zum Stadtbezirk Homberg/Ruhrort/Baerl.
Röttgersbach ist von mehreren anderen Stadtteilen umgeben, darunter Beeck, Friemersheim, Hochfeld, und Homberg.

Sonstiges

Bei Interesse stehen wir Ihnen gerne unter der Telefonnummer 0211-914 666 0 zur Verfügung.

War diese Immobilie nicht die richtige für Sie? Dann besuchen Sie uns auf unserer Homepage www.immobilienboerse.com

** Die hier eingestellten Flächendefinitionen sind mit größter Sorgfalt recherchiert, erheben jedoch nicht den Anspruch auf Alleingültigkeit und werden lediglich unverbindlich zu Informationszwecken zur Verfügung gestellt. Bitte beachten Sie auch unsere rechtlichen Hinweise. https://www.immobilienscout24.de/agb.html

164.000 €

Kaufpreis

74 m²

Nutzfläche

Adresse

Kaiser-Friedrich-Str. 250
47167 Duisburg

Preise & Kosten

Kaufpreis
164.000 €

Angaben zur Immobilie

Objektart
Verkaufsfläche
Nutzfläche
74 m²

Ausstattung

Ihr Laden mit guter Sichtbarkeit

Adresse

Adresse

Kaiser-Friedrich-Str. 250, Röttgersbach, 47167 Duisburg

Auf Karte zeigen

Umzugskosten vergleichen

164.000 €

Kaufpreis

77 m²

Fläche

77 m²

Verkauf

70 m²

teilbar ab

Lagekriterien

Zulieferung

Direkter Zugang

Fußweg zu öffentl. Verkehrsmitteln

1 Min.

Fahrzeit nächster Hauptbahnhof

18 Min.

Fahrzeit nächste Autobahn

11 Min.

Fahrzeit nächster Flughafen

36 Min.

Hauptkriterien

Nur hier gefunden

Provisionsfrei

Miete-/Kaufobjekt

Kauf

Objektart

Laden

Verkaufsfläche

77 m²

Verkaufsfläche teilbar ab

70 m²

Gesamtfläche

77 m²

Verfügbar ab

sofort

Qualität der Ausstattung

Normal

Schaufensterfront

10 m

Bodenbelag

Fliesen

Etage(n)

EG

Anzahl Parkflächen

2

Kosten

Kaufpreis

164.000 €

Kann ich mir dieses Objekt leisten?

Nebenkosten

120 € pro Monat oder pro m²

Provision für Käufer

Nein

Preis/Parkfläche

1.000 €

Umzugskosten

Berechnung starten

Finanzierung

Vergleiche passende Finanzierungen für diese Immobilie.

Wir finden für dich die Top-Angebote bei über 2.500 Anbietenden.

Jetzt kostenlos starten

Bausubstanz & Energieausweis

Baujahr

1964

Objektzustand

Gepflegt

Heizungsart

Öl-Heizung

Wesentliche Energieträger

Öl

Energieausweis

liegt vor

Energie­ausweistyp

Verbrauchsausweis

Energie­ver­brauchs­kennwert

105,1 kWh/(m²*a)

Baujahr laut Energieausweis

1964

Services für dich

Tipps für Gewerbe-Suchende

Wertvolle Tipps rund um die Planung und Suche von Gewerbeimmobilien kompakt zusammengestellt.

u.a. zu Existenzgründung, Standortwahl, Gewerbemietvertrag, Arbeitsrecht u.v.m.

Jetzt informieren

Objektbeschreibung

Die Immobilie befindet sich in einem gepflegten Zustand und wurde 1964 errichtet. Der Laden wurde zuletzt als Imbiss genutzt und könnte so wieder belegt werden.

Das Ladenlokal teilt sich auf insgesamt 77 m² auf und verfügt neben einer seperaten Küche, Flächen zur Lagerung.

Die Einheit lässt sich sowohl von Vorne, als auch von Hinten durch einen separaten Eingang betreten und verfügt gem. der Teilungserklärung über zwei Stellplätze im Hof.

Bei der angebotenen Gewerbeeinheit handelt es sich um die TE11 - diese ist entsprechend mit der Ziffer 11 im Grundriss bezeichnet.

Ausstattung

- Fliesenboden

- Grosse Ladenfläche

- Öl- Zentralheizung

- 10 Meter Schaufensterfront

- 2 Stellplätze

In dem Ladenlokal war bereits eine Entlüftung verbaut, diese kann vermutlich wieder angeschlossen und genutzt werden - dies müsste durch eine Fachfirma geprüft werden.

Ansprechpartner

KEMPE Immobilien GmbH

E-MailDiese E-Mail-Adresse ist vor Spambots geschützt! Zur Anzeige muss JavaScript eingeschaltet sein.
Webwww.immobililenboerse.com

Anbieter

KEMPE Immobilien GmbH

40237 Düsseldorf

E-MailDiese E-Mail-Adresse ist vor Spambots geschützt! Zur Anzeige muss JavaScript eingeschaltet sein.Anzeigen
Webhttps://immobilienboerse.comAnzeigen

Bilder

 Kaiser-Friedrich-Str. 250, Röttgersbach, 47167 Duisburg
 Kaiser-Friedrich-Str. 250, Röttgersbach, 47167 Duisburg