Zum Hauptinhalt springen

0211 914666-0   ·     info@immobilienboerse.com

KOSTENLOS TESTEN

Identifikator:

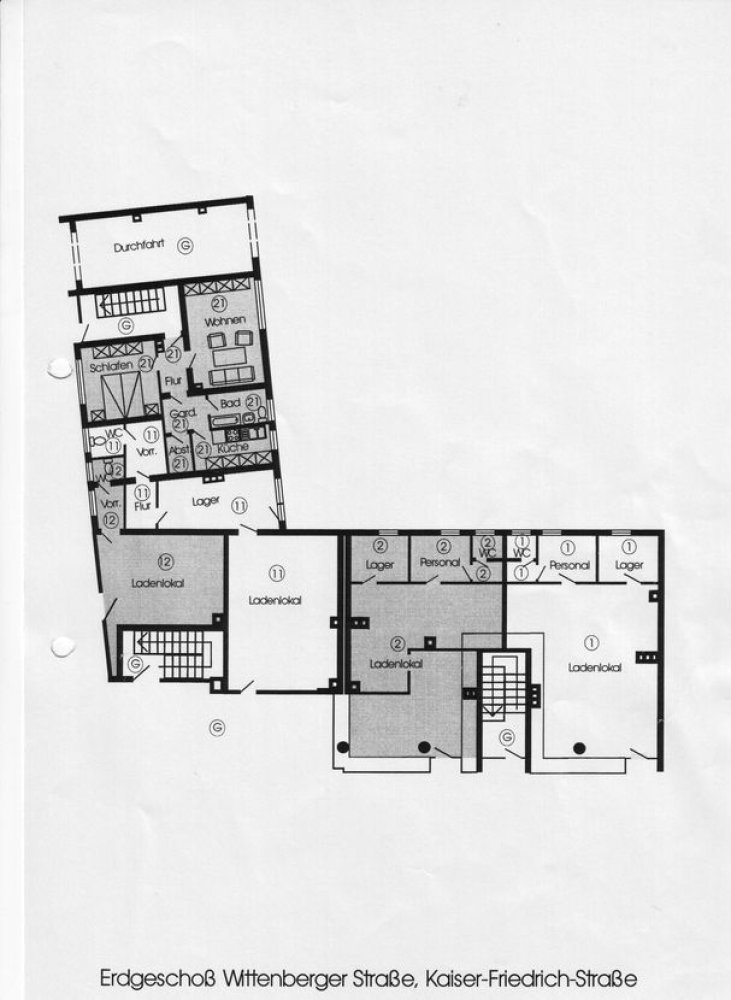
Kaiser-Friedrich-Str. 250, Röttgersbach, 47167 Duisburg

Kontakt

Bewerten

Empfehlen

* Pflichtfelder

Ähnliche Objekte

  • Solide vermietet !! Sichern Sie sich 6,4 % Rendite mit Sachwertsteigerung!
    81 m² Gesamtfläche
  • Ihr Laden an belebter Fußgängerzone in MG-Rheydt !
    84 m² Ladenfläche
  • 5,5 % Rendite! Solide vermietet in MG -Rheydt !